Wettbewerbsbeitrag Kita
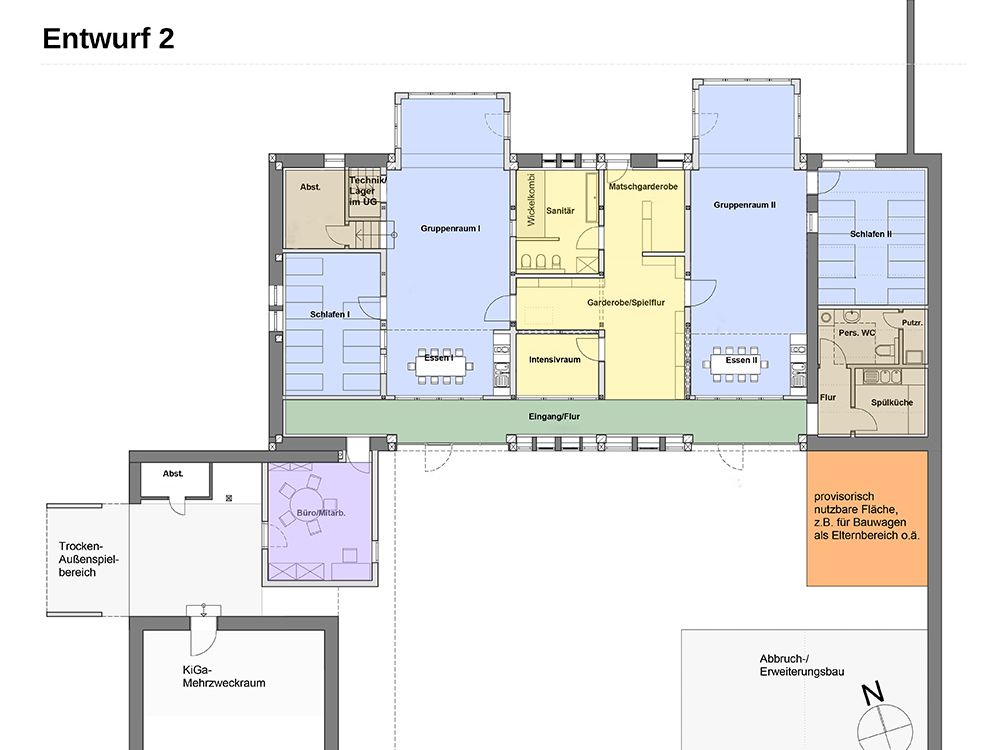
Der dreigruppige Kindergarten in Lengfeld hat bereits 20-jähriges Bestehen gefeiert. Eine zweigruppige Krippe soll in dem anschließenden Scheunenbau konzipiert werden. Der vorgestellte Wettbewerbsentwurf zeigt, wie die Raumanforderungen mit minimalen Veränderungen und kleinen Zubauten erfüllt werden können. Die Eingriffe in die sensible statische Rohbau-Substanz, die ursprünglich für eine Gemeindehalle vorbereitet wurde müssen, wenn der heutige Bau einigermaßen wirtschaftlich durchgeführt werden soll, behutsam vorgenommen werden.









