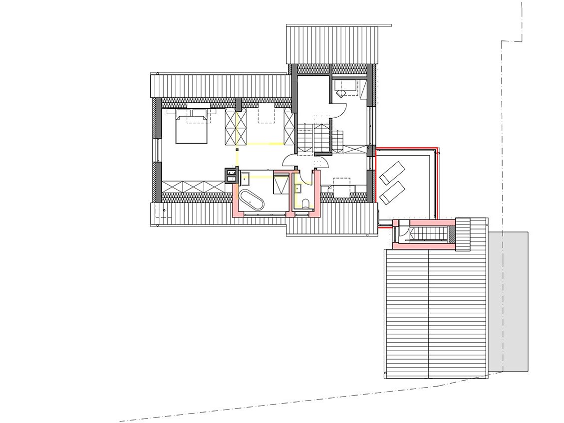
Haus S. in Seeheim
Das Einfamilienhaus von 1960 ist etwas Besonderes: das Haus eines Architekten, nicht groß, aber großzügig, mit ökologischen Materialien gebaut. Das Haupthaus und ein Nebengebäude werden durch einen Zwischenbau zu einer Nutzungseinheit zusammengeführt. Eine Sonnenterrasse auf dem Anbau ergänzt das großzügige Raumangebot. Durch eine energetische Sanierung bekommt das Gebäude Effizienzqualität KfW-85.
Die Bauzeit von sechs Monaten (zweite Hälfte 2021) wurde trotz teils äußerst schwieriger Rahmenbedingungen erreicht.










