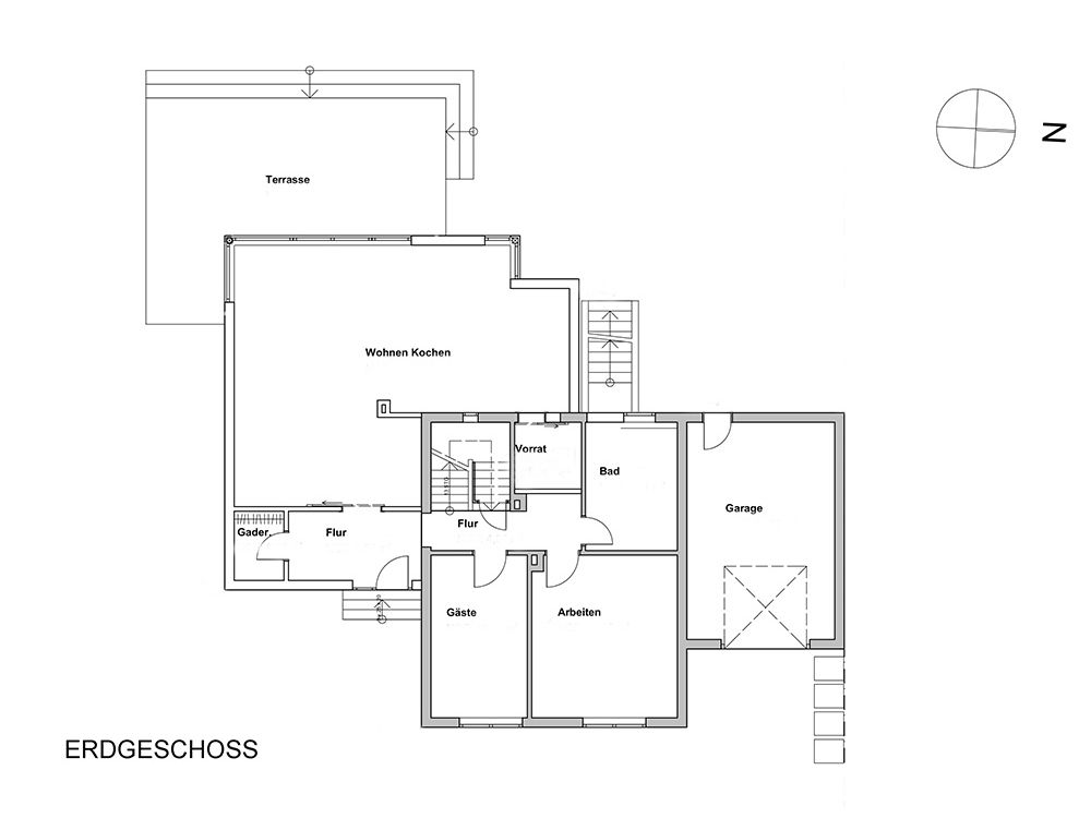
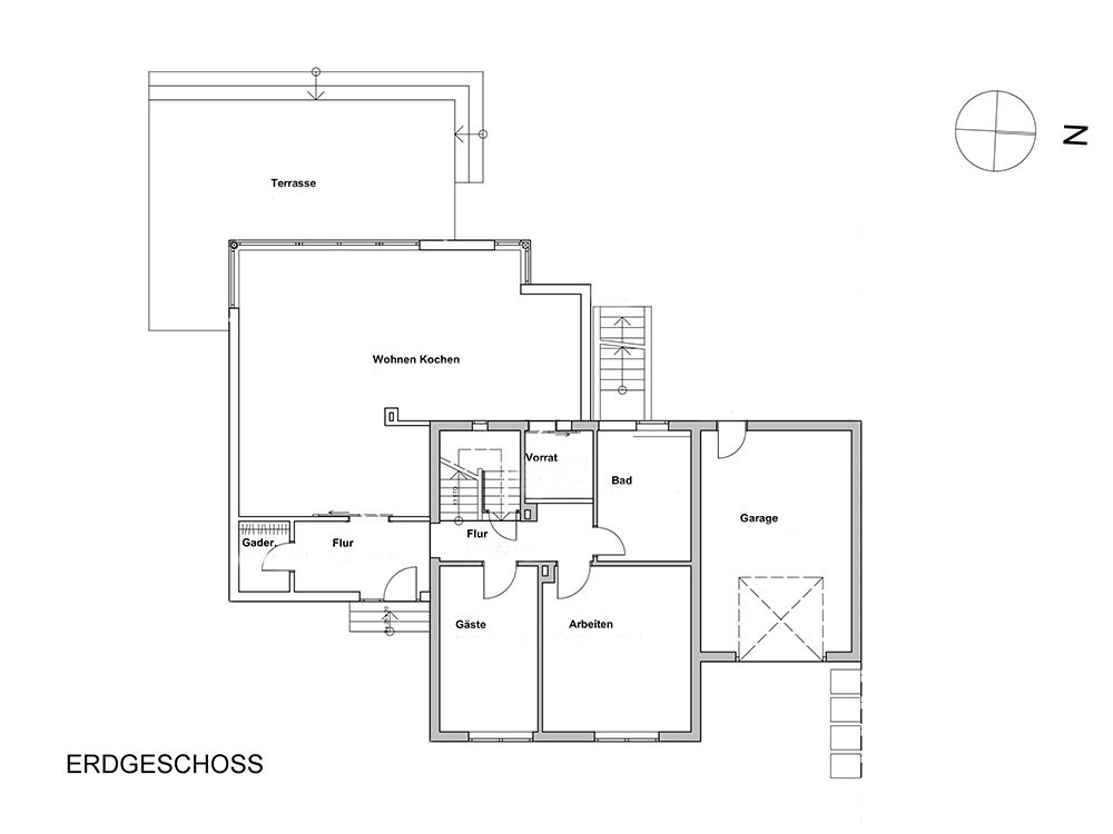
Einfamilienhaus in Darmstadt
Das Einfamilienhaus von 1958 bleibt in seiner Struktur weitestgehend erhalten. Eine Raumerweiterung wird durch einen "Zwillingsbau" geschaffen. Das alte Haus erfährt eine Komplett-Sanierung und wird zu einem KfW 70-Haus umgebaut. Die Baumaßnahme wird zwischen Mai und Oktober 2015 durchgeführt.









