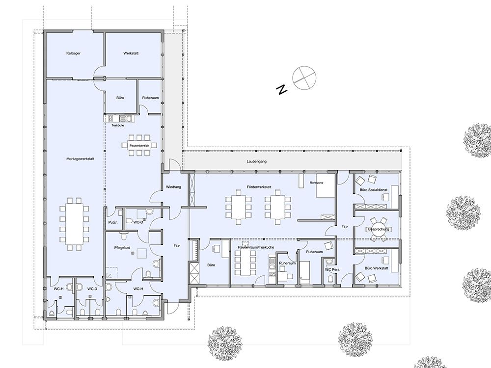
Heydenmühle Werkstattbauten
Durch den Bedarf an vergrößerten Werkstätten wurde 2006 ein neuer Werkstatttrakt für die Schreinerei und die Weberei an der Heydenmühle errichtet. Ein notwendiger Erweiterungsflügel für die Betreuung schwerstbehinderter Menschen in der Förderwerkstatt wurde 2012 geplant.





